Ensemble de bureaux à Munich
INFO
En tant qu’architecte chez BRT
Programme ensemble de bureaux à Munich
Missions APD-PC-PRO
Localisation Munich
Calendrier 2008
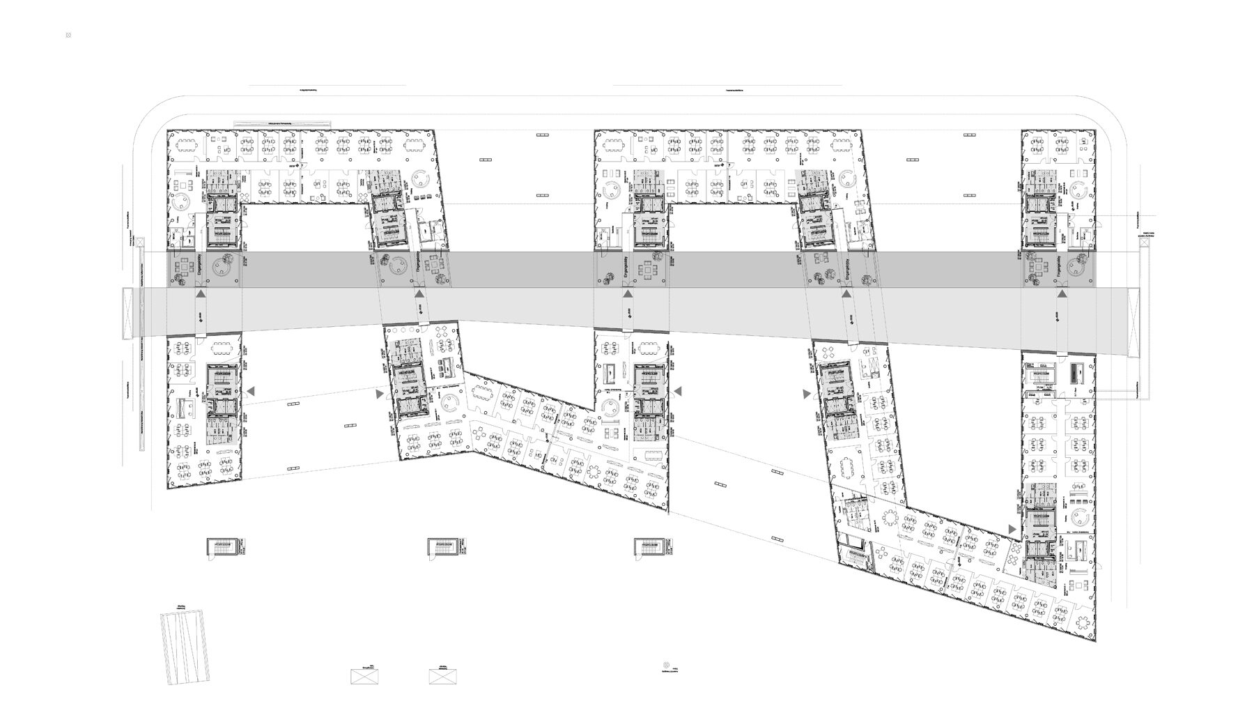
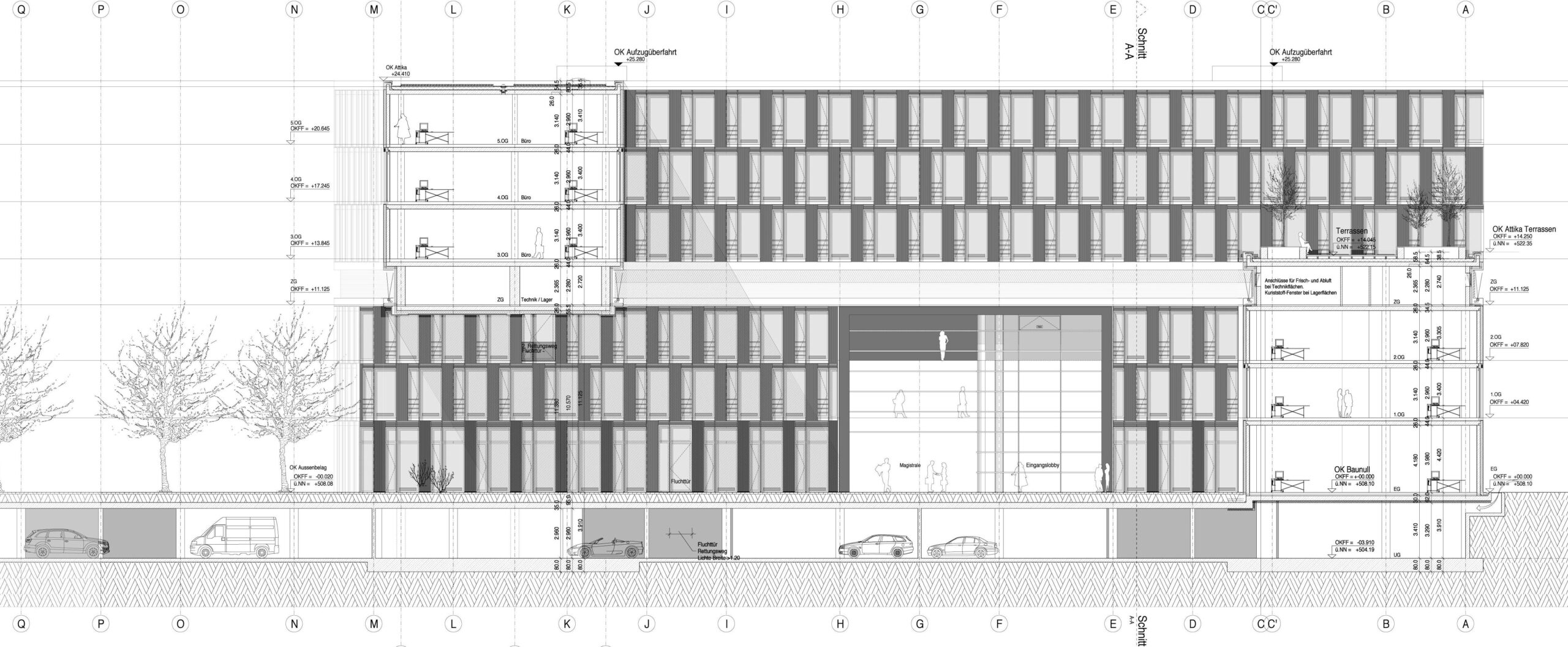
Description Ce projet se situe dans un quartier d’affaire proche du site des JO à Munich. Cette partie de la ville comprend plusieurs sièges de grandes multinationales (BMW, O2) et cet ensemble de bureaux se démarque par son jeu de volumes qui permet de libérer de grandes cours intérieures , des jardins et des terrasses ouvertes. Ses formes cadrent des vues sur son environnement et permettent d’offrir à chaque partie du bâtiment des espaces extérieurs distincts
Maîtrise d’ouvrage Riesstrasse 13 GmbH
Maîtrise d’œuvre BRT
Surface 40 000m² SDP
Tous droits réservés BRT







