Concours pour un campus media à Zürich
INFO
En tant qu’architecte chez Dominique Perrault Architecte
Programme Concours pour la réalisation du nouveau centre d’accueil et d’édition pour la radio et la télévision suisse SRF à Zürich
Missions Concours
Localisation Zürich, Suisse
Calendrier 2018
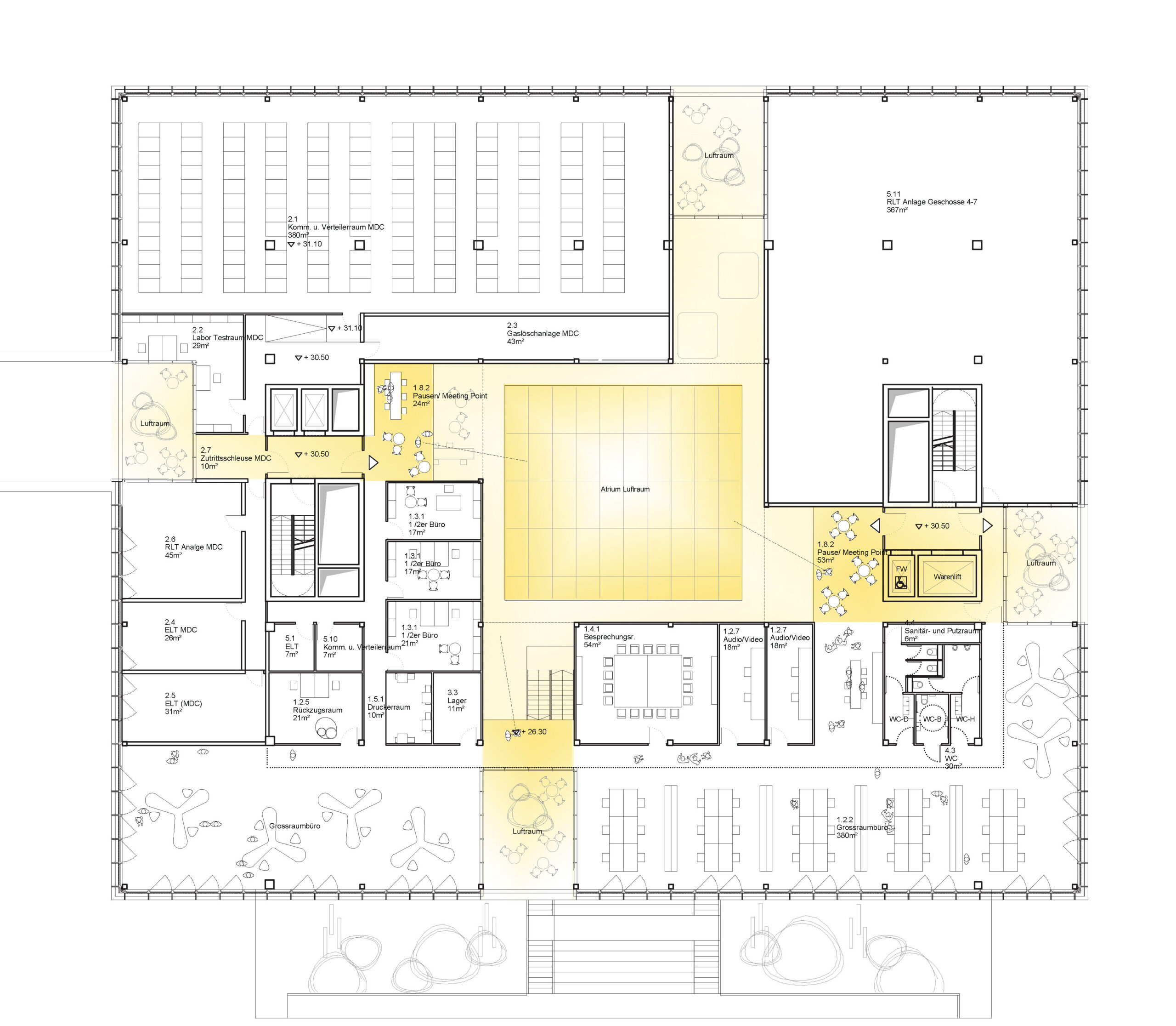
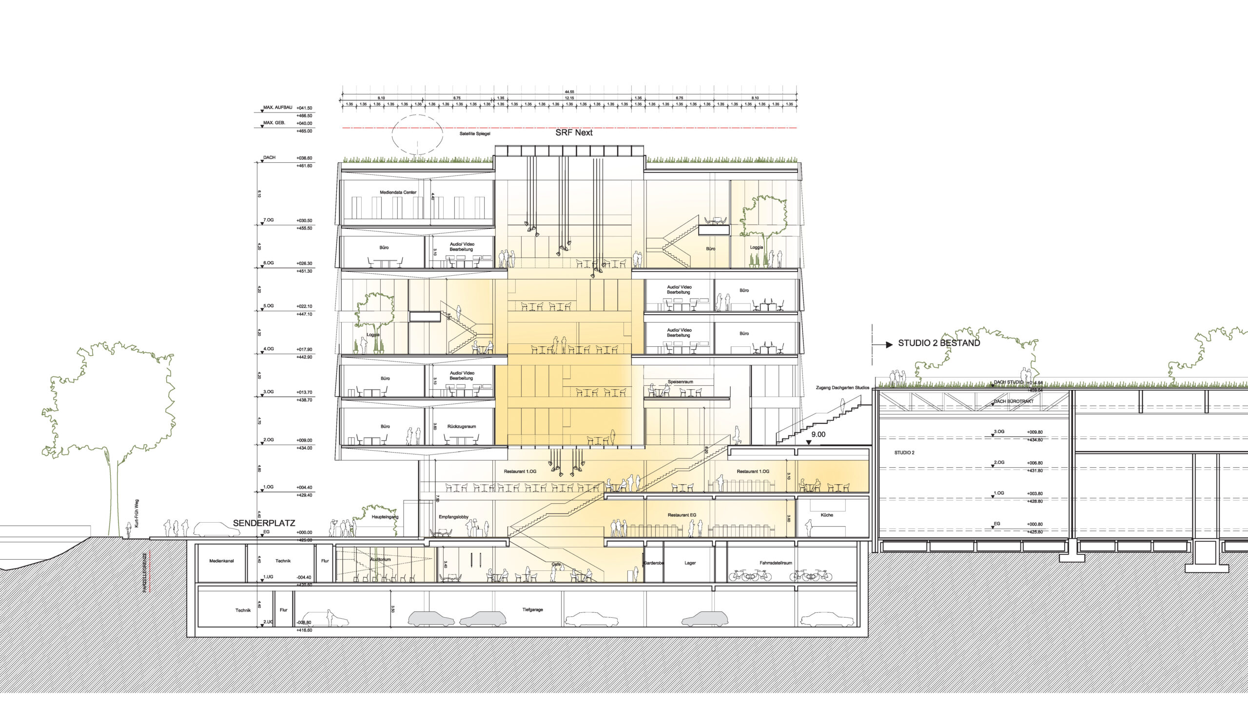
Description Notre proposition pour le nouveau centre d’accueil et d’édition de la radio et télévision suisse SRF à Zürich s’intègre au fonction du campus existant qui comprend des bureaux et des studios. Le projet s’articule autour d’un puits de lumière central et de grandes « fenêtres » connectant les étages aux bâtiments voisins. Le programme inclut des bureaux, des studios, un restaurant, un auditorium et des espaces de stockage et de logistique. Le rez-de-chaussée, ouvert sur le parvis, accueille les fonctions accessibles au public, favorisant l’interaction et l’accessibilité.
Maîtrise d’Ouvrage Schweizer Radio und Fernsehen SRF
Maîtrise d’œuvre Dominique Perrault Architecte
Surface 15 000m² SDP
Tous droits réservés Dominique Perrault Architecte







