Réalisation de 79 logements à Floirac
INFO
en tant que chef de projet à l’Atelier Pascal Gontier
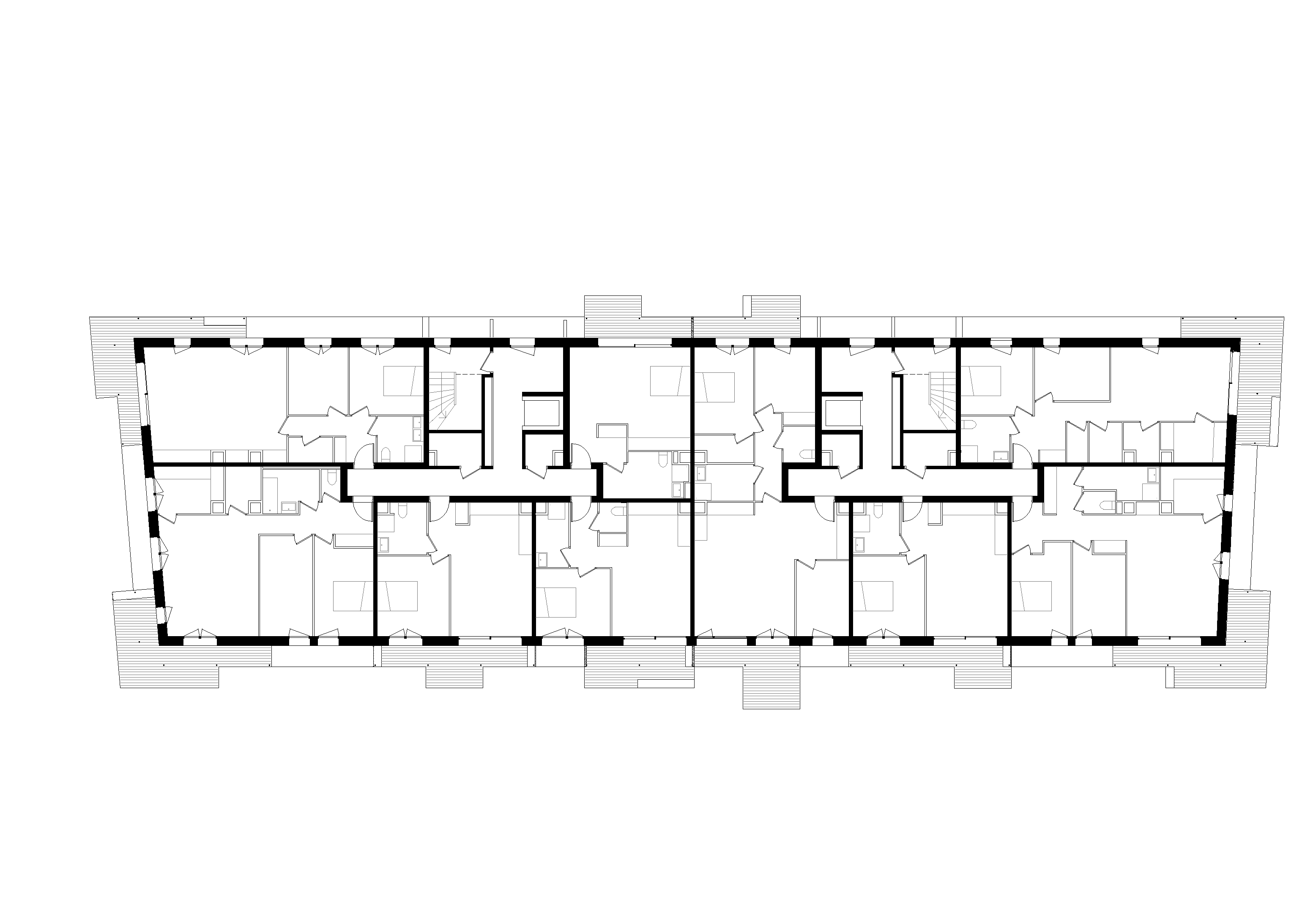
Programme Réalisation de 79 logements répartis dans 4 immeubles collectifs et 3 maisons
Missions Suivi de chantier (en mission complète)
Localisation Floirac (33)
Calendrier livraison fin 2022
Description Ce projet résidentiel à Floirac près de Bordeaux est constitué de 4 immeubles collectifs et de 3 maisons en bande. Sur une partie du programme les logements ont été co-conçus avec les futurs habitants qui ont pu travailler avec les architectes lors d’ateliers participatifs afin de déterminer l’organisation intérieure de leur logement mais également de leurs espaces extérieures. Les balcons sont conçus comme un système de modules qui permettent plusieurs configuration selon la méthode développée par l’architecte Pascal Gontier: le Bespoke Open Buidling. Une partie des bâtiments sont en construction hybride bois et béton: Façades porteuses en ossature bois, Plancher bois lamellé-croisé (CLT), noyaux verticaux et toiture-terrasse en béton.
Maîtrise d’Ouvrage QUARTUS Résidentiel
Maîtrise d’œuvre Atelier Pascal Gontier
Surface 5500m² SDP
coûts travaux 7 200 000 €
Tous droits réservés Atelier Pascal Gontier Architecte



