Rénovation de deux immeubles à Hambourg
INFO
en tant qu’architecte chez RHW Architectes
Programme Rénovation de deux immeubles de logements et création d’une extension sur deux niveaux sur l’arrière du bâtiment.
Missions APS-DET
Localisation Hambourg, Allemagne
Calendrier livraison 2015
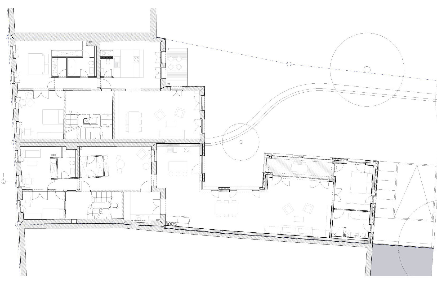
Description ce projet de 8 logements occupe deux bâtiments classés historiques situés dans le cœur de Hambourg, à proximité de la gare. Les deux immeubles datant de 1840 ont fait l’objet d’une restauration lourde (façades, menuiseries, toitures, circulations verticales) et d’une extension dans la profondeur de la parcelle. Le plan d’origine de l’édifice est repensé pour la nouvelle organisation des logements. Des blocs fonctionnels sont créés à l’intérieur des espaces d’origine afin de conserver les plafonds et moulures d’origine. Ce projet a permis de retravailler avec des techniques anciennes comme pour les charpentes ou les planchers bois.
Maîtrise d’Ouvrage Erzbistum Hamburg
Maîtrise d’œuvre RHW Architectes
Surface 900m² SDP
coûts travaux 4 900 000 €
Tous droits réservés RHW Architectes





