Gare du Grand Paris Express à Issy
INFO
En tant qu’architecte chez AREP
Programme construction d’une nouvelle gare RER en interconnexion avec le réseau Grand Paris Express
Missions AVP-PRO
Localisation Torcy, ZAC des côteaux de la Marne
Calendrier livraison prévu en 2024 sur projet de 2015 à 2016
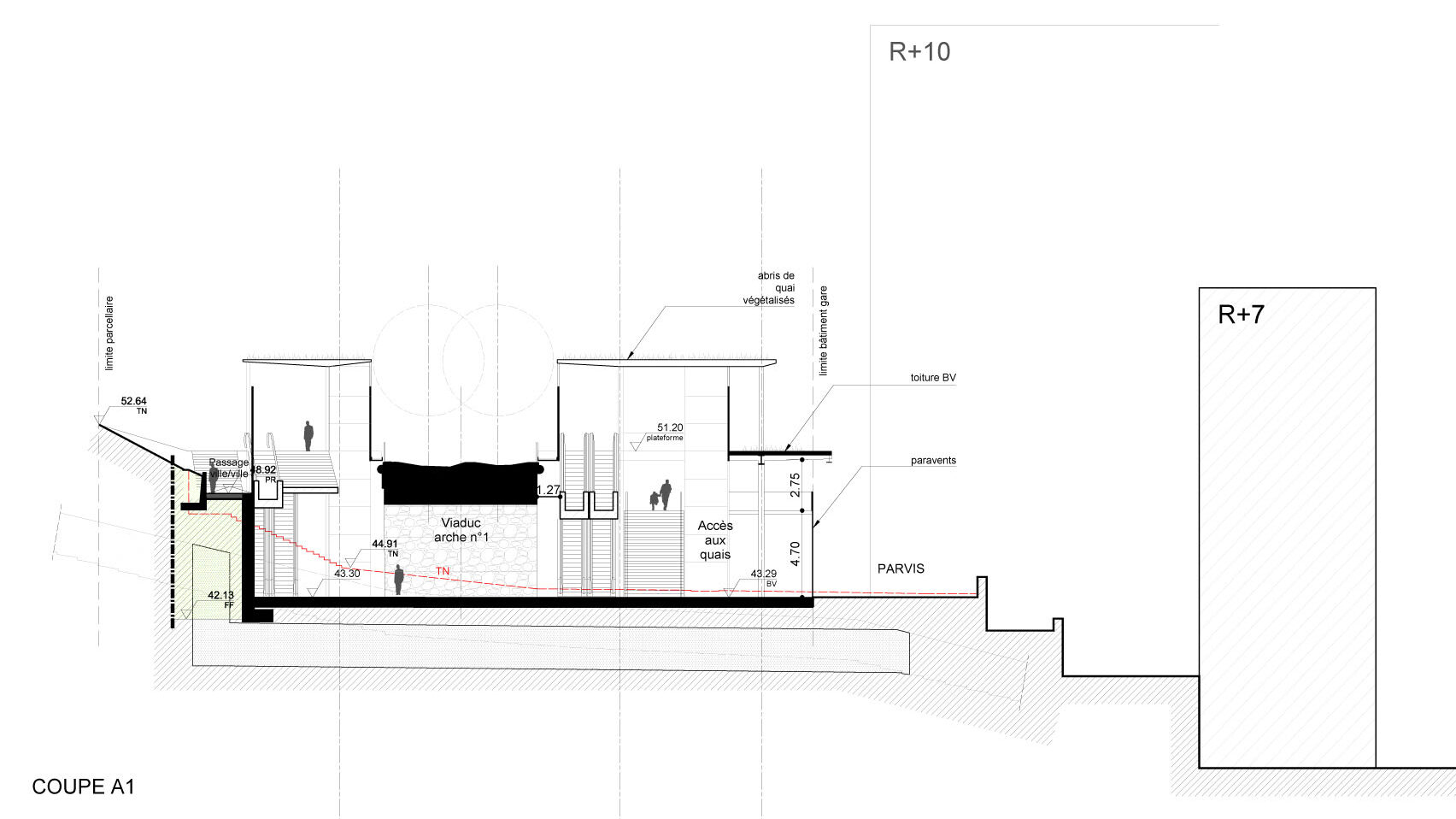
Description la nouvelle gare permet la connexion du réseau RER (SNCF) avec le nouveau réseau de transport du Grand Paris Express (GPE-SGP). Des circulations verticales depuis la station souterraine du GPE, viennent émerger au niveau de l’actuelle gare RER qui est remplacé par le nouveau bâtiment. Celui-ci permet aux voyageurs de passer d’un réseau à l’autre. Le projet relira aussi la partie haute et la partie basse de la ville avec deux niveaux d’entrée à côté du viaduc existant. L’espace de la gare se développe sous les arches du viaduc des voies RER qui divise son volume en deux.
Maîtrise d’Ouvrage GPE-SGP et SNCF
Maîtrise d’œuvre AREP
Surface 1 500m² SDP
Tous droits réservés AREP





