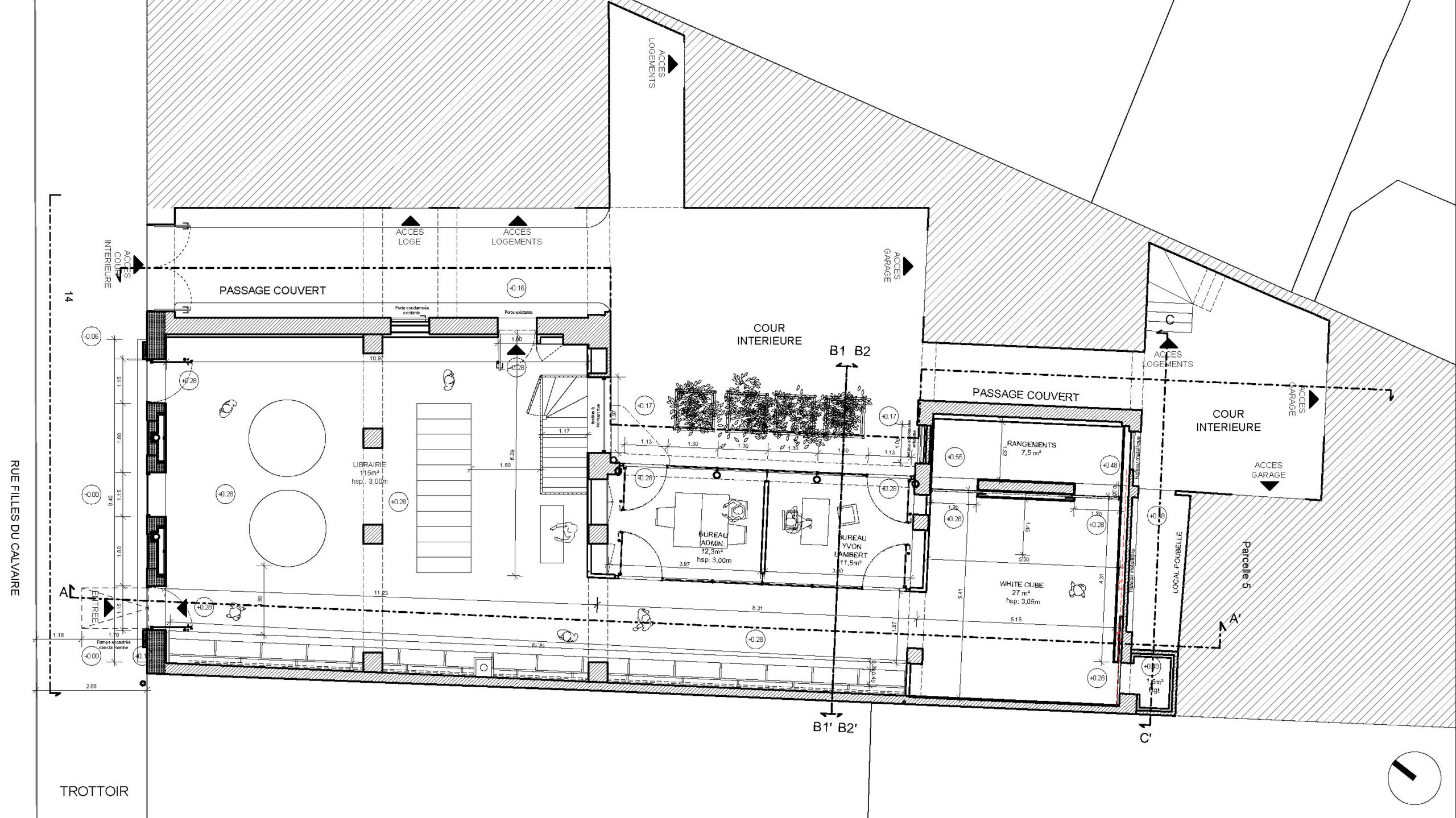
Librairie Yvon Lambert à Paris
INFO
En tant qu’architecte chez Dominique Perrault Architecte
Programme Rénovation d’un local pour y accueillir une librairie et une galerie
Missions PRO-DCE
Localisation Paris 4e
Calendrier livraison 2017
Description ce lieu dédié aux livres d’art, catalogues, ouvrages rares et affiches accueille également des bureaux ouvert sur une cour intérieure. La librairie, également espace d’exposition, est lumineuse et traversante, reliant la rue à la cour intérieure. La façade en pierre de taille, avec de hauts châssis métalliques vitrés permet d’amener de la lumière tout en s’intégrant dans la façade haussmannienne. À l’intérieur, une grande étagère en bois de bouleau et des tables en acier brut verni organisent les livres. Le design utilise des teintes grises et des matériaux mats ou réfléchissants, avec des luminaires en néons croisés.
Maîtrise d’œuvre Dominique Perrault Architecte
Surface 270m² SDP
Tous droits réservés Dominique Perrault Architecte





