Logements à La Seyne-sur-Mer
INFO
En tant qu’architecte chez Pietri Architectes
Programme Construction neuve de 50 logements en accession privé
Missions ESQ-PC
Localisation La Seyne-sur-Mer
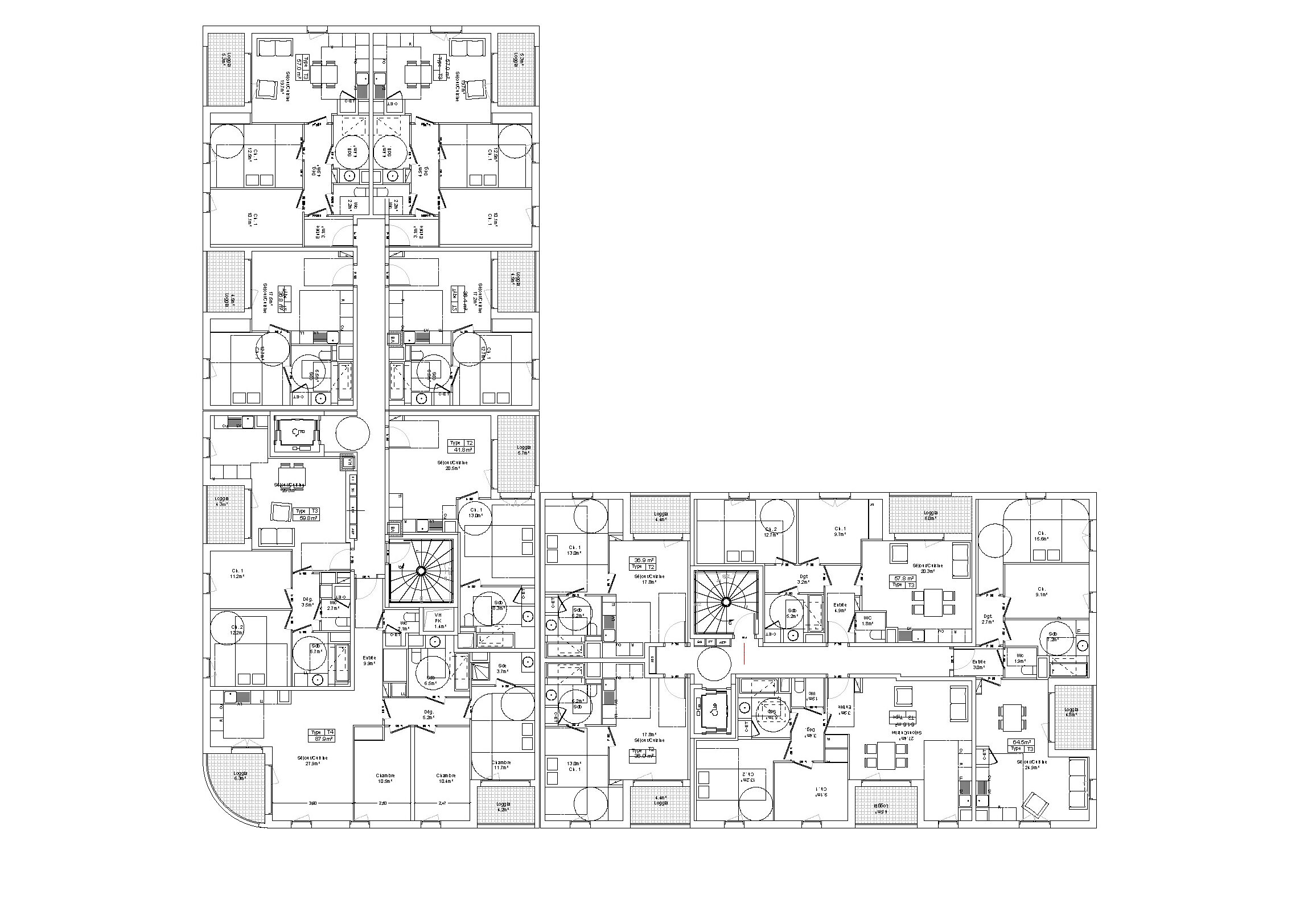
Description Située près de la côte, cette opération présente une façade en enduit ocre aux teintes traditionnelles. Le projet se divise en deux ensembles de logements collectifs entourant un cœur d’îlot vert, avec un parking souterrain mutualisé. En bordure de ville, ce développement comprend un vaste espace vert, destiné à être rétrocédé à la commune pour la création d’un jardin public.
Maîtrise d’Ouvrage Constructa
Maîtrise d’œuvre Pietri Architecte
Surface 3400m² SDP
Tous droits réservés Pietri Architectes



